Puri VIP Floors

About Puri VIP Floors

Puri VIP Floors is a premium low-rise residential development by Puri Constructions, designed for homebuyers who prefer independence, space, and luxurious living. Located in one of Faridabad’s fast-developing sectors, the project offers peaceful surroundings, excellent connectivity, and a well-planned community lifestyle.

Built with high-quality materials and modern architecture, Puri VIP Floors brings together comfort, privacy, and beauty — perfect for families seeking an upgraded lifestyle in NCR.

Property Overview – Puri VIP Floors

Puri VIP Floors is a beautifully planned residential project spread across approximately 15–18 acres (depending on the specific phase). The development consists of independent low-rise floors, designed for residents who desire personal space along with premium community living.

Each unit offers spacious interiors, cross-ventilated rooms, wide balconies, and thoughtfully planned layouts to ensure maximum natural light. Surrounded by landscaped gardens, paved walkways, and green pockets, this project creates a calm and fresh atmosphere that enhances daily living.

Its location offers smooth connectivity to main highways, metro stations, schools, hospitals, and shopping hubs — making it ideal for both homebuyers and investors.

50
Features & amenities
Property overview
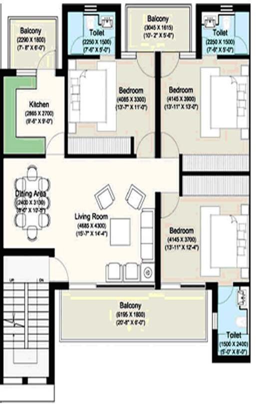
Floor Plan
Unit Plan (S+12)
3 BHK

Type

3 Bedrooms, Hall, Kitchen

Unit Size

300 Sq. Yds.

Resale Value

₹ 1.15cr - 1.30cr

4 BHK

Unit Type

500 Sq. Yds.

Type

4 Bedrooms, Hall, Kitchen

Resale Value

₹ 2.20cr - 3.50cr
Project Highlights – Puri VIP Floors
  • Low-rise independent floors with premium design

  • Located in a well-developed sector of Faridabad

  • Spacious 2 & 3 BHK floors with wide balconies

  • Stilt parking for all residents

  • Green & pollution-free community environment

  • High-quality construction by Puri Constructions

  • Close to schools, hospitals, metro stations & markets
  • Gated community with controlled entry and security

  • High rental and appreciation potential

Your Dream Home, Our Trusted Deal.

At Anupam Properties, we believe every home tells a story — your story. With years of expertise and a reputation built on trust, transparency, and excellence, we make your property journey smooth and rewarding. From premium apartments to investment plots, we bring you the best real estate opportunities that perfectly match your lifestyle and aspirations.

Any inquiry

Get in touch